玄関前の段差は、毎日の出入りの中で少しずつ負担になっていく場所です。
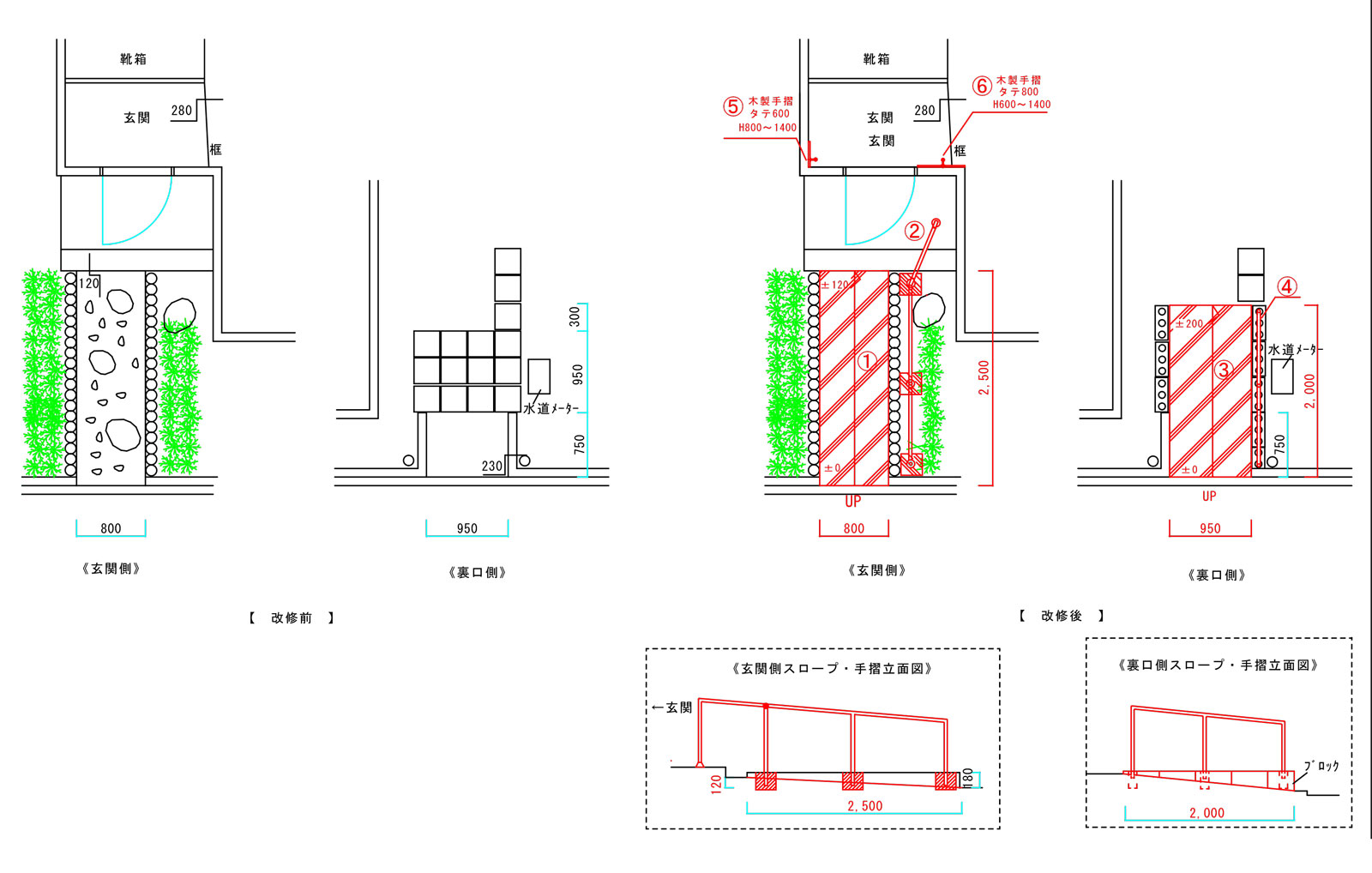
今回の施工では、玄関前の砂利や裏口の階段を撤去し、歩きやすさに配慮することで、安全に使えるスロープへと改修しました。
単に段差を解消するだけでなく、庭の景観をできるだけ損なわないこと、ドアの開閉動作が無理なく行えることにも配慮しています。
暮らしやすさと外構デザインの両立を目指したバリアフリー事例をご紹介します。
| 場所 | 神奈川県相模原市 |
| 建物データ | 戸建て、リフォーム |
玄関前|景観を守り、砂利を撤去して安全なスロープへ

施工前

施工後


玄関前は、これまで砂利敷きとなっており、足元が不安定で歩行時に負担がかかりやすい状況でした。
特に、杖や歩行器を使用することを想定した際、砂利が邪魔になったり、足を取られたりすることがあり、転倒のリスクも懸念されていました。
そこで今回の工事では、砂利を撤去し、安定した歩行ができるスロープへと改修しています。
また、スロープは庭全体の雰囲気を損なわないよう、周囲の景観に配慮したデザインとなっています。
裏口|既存の階段を撤去し、使いやすいスロープに改修
施工前


施工後


裏口は、これまで数段の階段があり、上り下りのたびに足元への注意が必要な場所でした。
特に荷物をもって出入りする場面や。体調や身体状況に不安のあるときには、転倒のリスクを感じやすい場所でもありました。
そこで、既存の階段を撤去し、玄関前のスロープと同じデザインになるようにしつつ、段差のない安全なスロープを設置しています。
勾配や幅を考慮することで、歩行時の負担を軽減し、無理のない動線を確保しました。
出入り動作をサポート|ドアを開けやすい位置に手すりを設置
施工後


スロープを設置して段差を解消しても、ドアの開閉動作が不安定なままでは、安全な出入りにつながりません。
特に、片手でドアを操作しながら身体のバランスをとる場面では、支えとなるポイントが重要になります。
そこでドアを開ける動作に合わせて、手が自然に伸びる位置に手すりを設置しました。
握りやすさや立ち位置を考慮することで、無理な体勢にならず。安心してドアの開閉が行えます。
ご利用ありがとうございました!
16-1250
well99株式会社では、
バリアフリー・介護リフォームの専門家集団が
「朝起きてから寝るまで」を共に悩み、解決します
バリアフリーリフォームとは家の中を住みやすくする、というでだけではありません。私共は、家の中の障害や不便をなくす事で、よりエネルギッシュに世界と繋がって生活ができることを目標にしております。
「毎日のお出かけが億劫でなくなった!楽しく生活しています」というお声をいただけることが何よりの誇りです。
バリアフリー化の悩み介護リフォームの悩み、なんでもお声掛けくださいませ!


